Bouw uw schuurwoning bij Groothuisbouw

De schuurwoning kenmerkt zich door een strakke en eenvoudige vorm, stoere houten gebinten en zijn dakoverstek. Er wordt gebruik gemaakt van natuurlijke materialen en een moderne vormgeving. Dit woningtype is uit te voeren in metselwerk, hout of een combinatie tussen beide. Alle schuurwoningen beschikken over een 53 graden kap!

large-Schuurwoning_Hout_Riet-1

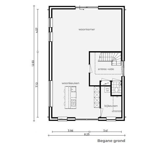
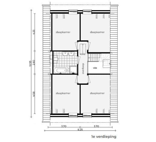
Voorbeeld indeling

Schermafbeelding 2025-07-22 154806

Naast de getoonde plattegronden en maatvoeringen is nog veel meer mogelijk. We horen graag hoe uw droomwoning eruit ziet! 

Schermafbeelding 2025-07-22 1548067

UITVOERINGEN

Bekijk hier alvast een greep uit ons assortiment. Uiteraard is er nog veel meer mogelijk! Stel op onze website in 7 stappen uw droomwoning samen en bereken direct de kosten.
hout en metselwerk

Uitvoering in hout en metselwerk


Bereken de prijs voor deze woning

schuurwoning metselwerk-1

Uitvoering in metselwerk


Bereken de prijs voor deze woning

schuurwoning metselwerk en riet-1

Uitvoering in metselwerk en riet


Bereken de prijs voor deze woning

schuurwoning hout en riet-1

Uitvoering in hout en riet


Bereken de prijs voor deze woning

schuurwoning hout metselwerk en riet-1

Uitvoering in hout, metselwerk en riet


Bereken de prijs voor deze woning

Standaard beschikt een schuurwoning over:

  • 4 Slaapkamers
  • Ruime woonkamer
  • Vloerverwarming begane grond
  • Uitgevoerd met een vliering
  • Hardhouten binnendeurkozijnen en verdiepingstrap
  • 53 graden kap

Heading 1

with a request body that specifies how to map the columns of your import file to the associated CRM properties in HubSpot.... In the request JSON, define the import file details, including mapping the spreadsheet's columns to HubSpot data. Your request JSON should include the following fields:... entry for each column.

Extra opties

Gaat u voor een hoekkozijn of droomt u helemaal weg van een groot overstek? Door uw woning te verfraaien met extra opties maakt u uw eigen unieke plaatje compleet. Uw schuurwoning kan onder andere worden voorzien van de volgende opties:

  • Glaspartij tot in de nok
  • Houten gebinten
  • Groot overstek
  • Hoekkozijn
  • Dakkapellen
  • Middenrisaliet
  • Houten details
  • Vrijstaande of aangebouwde berging

Daarnaast is het mogelijk deze woning te vergroten! Er is nog veel meer mogelijk dan wij hier kunnen laten zien. 

Schermafbeelding 2025-07-22 163543