KUBISTISCHE WONING
De Kubistische woning is een nieuw woningtype binnen het aanbod van Groothuisbouw. Het ontwerp kenmerkt zich door een moderne vormgeving, strakke lijnen en een plat dak. Het is een aanvulling op onze woningen met kap. De manier van bouwen blijft vertrouwd, met duidelijke afspraken en een hoge kwaliteit.
Modern vormgegeven met een rustige uitstraling
Ontdek de Kubistische woning
De moderne vormgeving sluit aan bij de strakke hoofdvorm en het platte dak. Hierdoor ontstaat een rustig en evenwichtig geheel. Kenmerkend zijn de strakke gevelvlakken, peilkozijnen en onderhoudsarme details, zoals de gevelband. Samen dragen deze elementen bij aan een woning die modern oogt en zorgvuldig is afgewerkt.
- Strakke gevelvlakken
- Peilkozijnen
- Onderhoudsarme gevelband
Opties voor meer licht en ruimte
Berging

Carport

Hoekkozijn

Veranda met lichtstraat

Ontworpen om mee te bewegen met uw woonwensen
Het uitgangspunt van de Kubistische woning
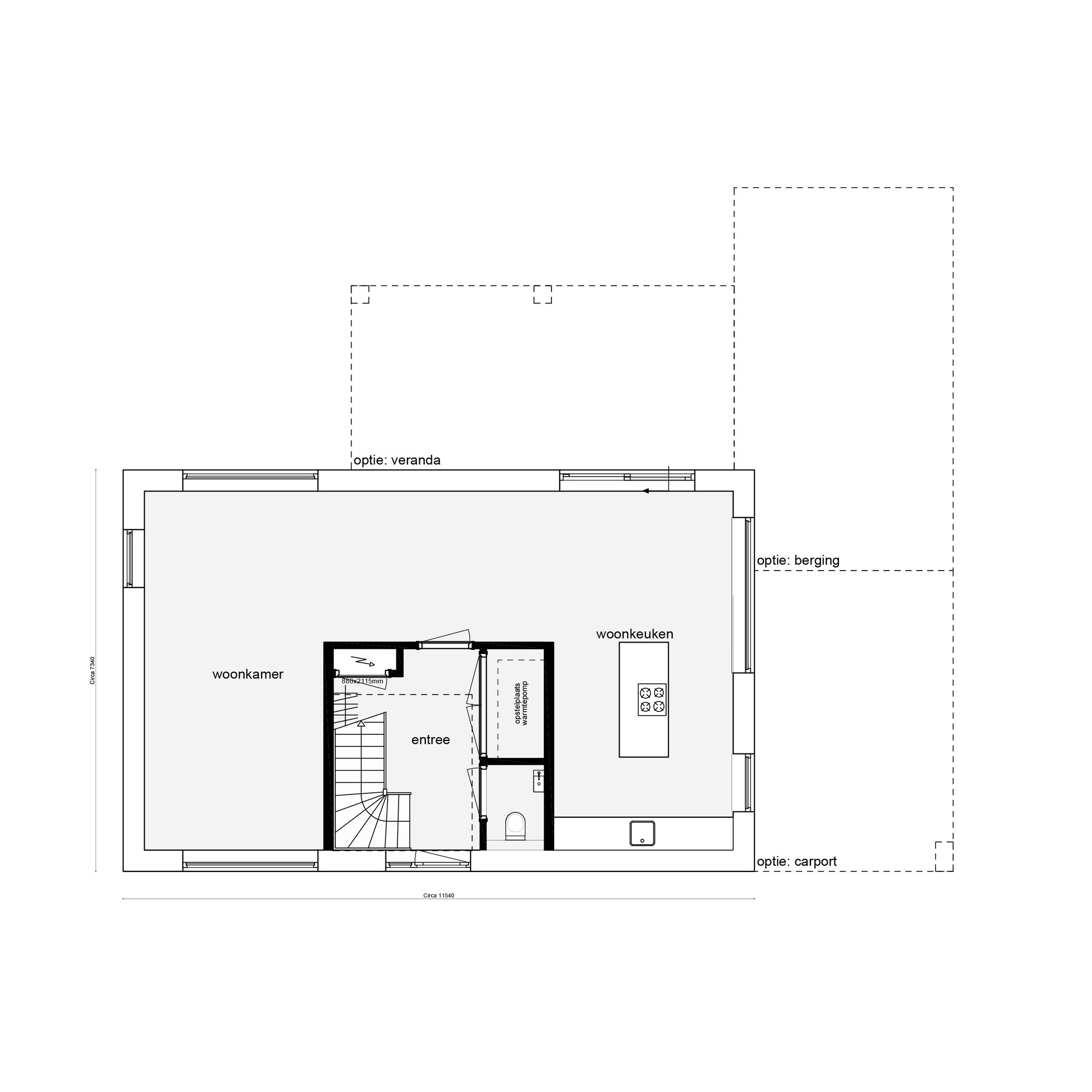
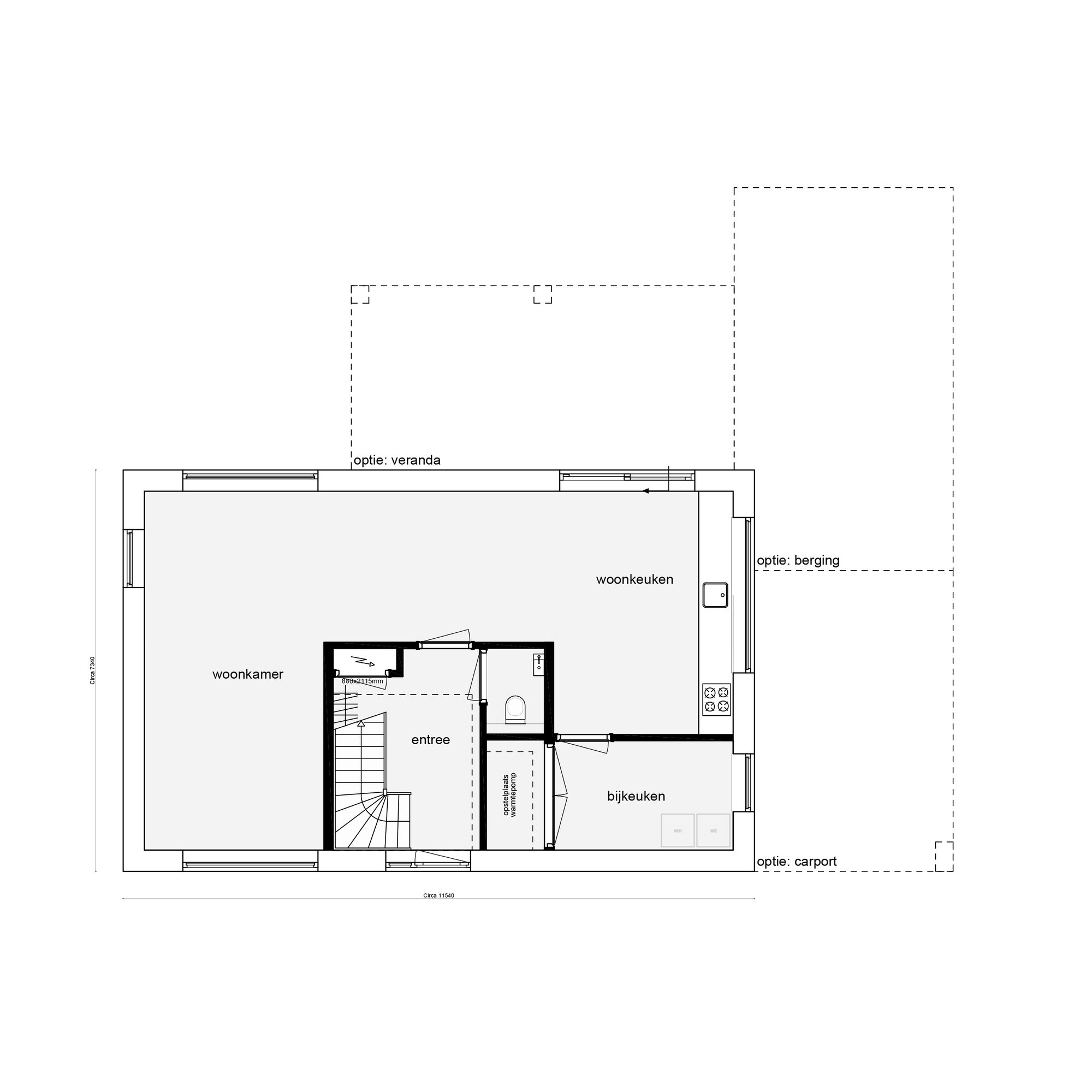
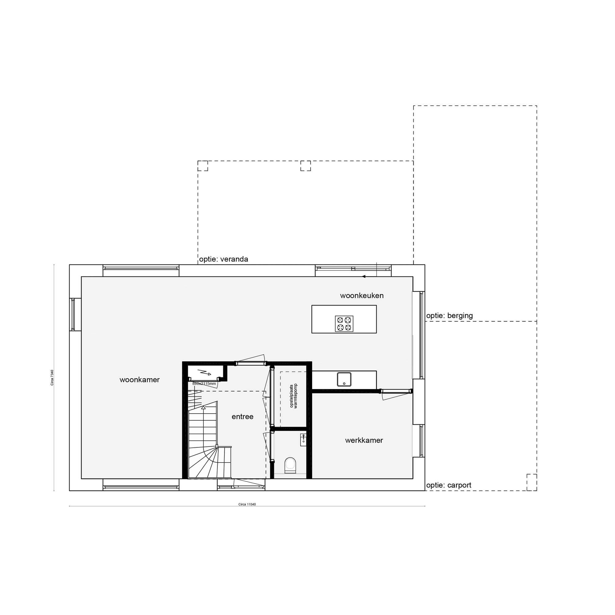
De Kubistische woning is beschikbaar in verschillende afmetingen en kan worden verlengd, verbreed of gedraaid. Zo kan het ontwerp worden afgestemd op uw woonwensen en de mogelijkheden van de kavel. De indeling staat niet vast en vormt een flexibel uitgangspunt, met ruimte om de plattegrond aan te passen aan uw persoonlijke woonwensen. Denk hierbij aan de verdeling van de leefruimtes en slaapkamers.
Altijd een woning die bij u past
- Plat dak
- Mogelijkheid tot 4 slaapkamers
- Ruime woonkamer en keuken
- 556 m3 inhoud
- 162 m2 bruto vloeroppervlak
Inspiratieplattegronden
Begane grond
.png?width=2000&height=2000&name=Inspiratieplattegrond%20-%20Kubistische%20woning%20(1).png)
.png?width=2000&height=2000&name=Inspiratieplattegrond%20-%20Kubistische%20woning%20(2).png)
Verdieping
.png?width=2000&height=2000&name=Inspiratieplattegrond%20-%20Kubistische%20woning%20(3).png)
.png?width=2000&height=2000&name=Inspiratieplattegrond%20-%20Kubistische%20woning%20(4).png)
Laat u inspireren in Emmeloord
Modelwoningen in Emmeloord
Onze zes modelwoningen in Emmeloord zijn vrij te bezoeken. U loopt hier op eigen gelegenheid binnen. Zo krijgt u een goed beeld van de indeling, ruimte en afwerking van onze woningen.
Heeft u vragen? Dan bent u van harte welkom op ons kantoor. Hier kunt u ook de showroom bezoeken.
Plan uw persoonlijke adviesgesprek