2 onder 1 kap

Schermafbeelding 2025-10-09 115812

Bouw uw luxe geschakelde villa bij Groothuisbouw

Groothuisbouw is in ontwikkeling! We hebben ons assortiment opnieuw uitgebreid, ditmaal met een serie 2 onder 1 kap. Dit woningtype is beschikbaar in onze uitvoeringen Notarisstijl, Moderne Schildkap, Eigentijds & Strak en Modern & Stijlvol. Daarnaast is het mogelijk om de woning extra te verfraaien met verschillende opties.

Heading 1

with a request body that specifies how to map the columns of your import file to the associated CRM properties in HubSpot.... In the request JSON, define the import file details, including mapping the spreadsheet's columns to HubSpot data. Your request JSON should include the following fields:... entry for each column.

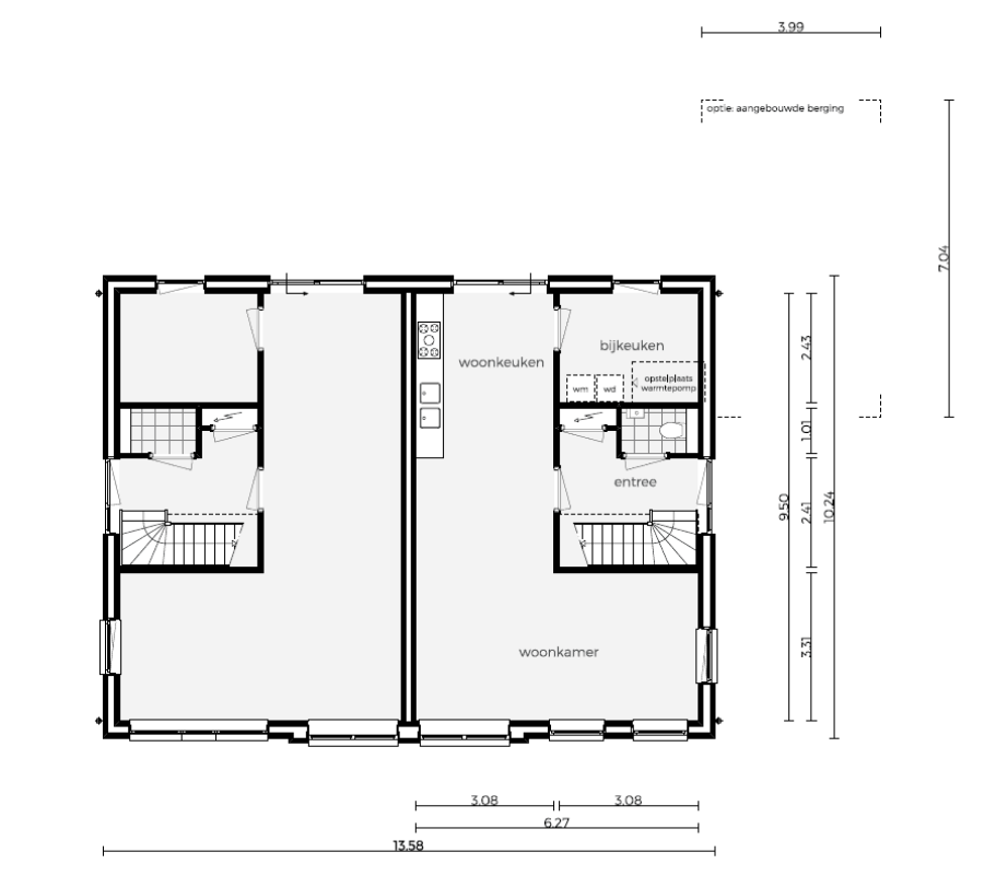
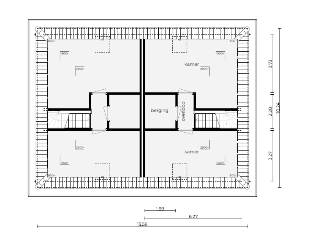
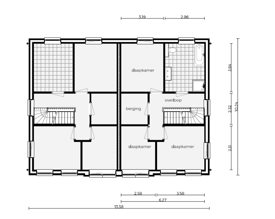
Indelingen en plattegronden

De uitvoeringen

Schermafbeelding 2025-10-09 115338
Schildkap
€322.450,- | 609,0m³ 
Schermafbeelding 2025-10-09 115324
Schildkap Klassiek
€347.840,- | 605,0m³ 
Schermafbeelding 2025-10-09 115301
Eigentijds & Strak
€344.520,- | 617,0m³ 
Schermafbeelding 2025-10-09 115315
Modern & Stijlvol
€351.120,- | 622,0m³ 

Standaard hebben de 2 onder 1 kap woningen van Groothuisbouw:

Grote woonkamer

5 slaapkamers

Klassieke details

Grote woonkeuken

Moderne details

Extra opties

Gaat u voor nog meer ruimte door te kiezen voor een berging of droomt u helemaal weg bij de gedachte aan die schitterende serre? Door uw woning te verfraaien met extra opties maakt u uw eigen unieke plaatje compleet. Uw twee-onder-een-kapwoning kan onder andere worden voorzien van de volgende opties:

  • Dakkapellen
  • Erker / serre
  • Bijgebouw / berging
  • Opgaande voordeurpartij in glas
  • Uitgebouwde entree met luifel
  • Vergroten / verkleinen van de woning

 

Er is nog veel meer mogelijk dan wij hier kunnen laten zien. We laten u graag kennismaken met alle mogelijkheden tijdens een vrijblijvend adviesgesprek.

 

Schermafbeelding 2025-10-09 115812